En el corazón de la provincia una casa de campo se abre paso entre imponentes nogales y la majestuosa Cordillera de Los Andes. Se trata de una vivienda rústica ubicada en el Valle de Uco proyectada por el arq. Enrique Manescau y la arq. Karen Noval.
En el corazón de la provincia una casa de campo se abre paso entre imponentes nogales y la majestuosa Cordillera de Los Andes. Se trata de una vivienda rústica ubicada en el Valle de Uco proyectada por el arq. Enrique Manescau y la arq. Karen Noval.
La casa se encuentra en una finca llamada “La Cautiva” en Tupungato, al sur de la ciudad de Mendoza. Está pensada para una pareja de extranjeros y sus invitados quienes viajan en temporadas particulares o fines de semana.

Se accede e inicia su recorrido a través de una plantación de nogales existentes de gran porte. Continúa por un callejón de granza rodeado de viñedos, bordea la represa y concluye en la casa con su impactante escenario de fondo de la cordillera de Los Andes y el cerro Tupungato.


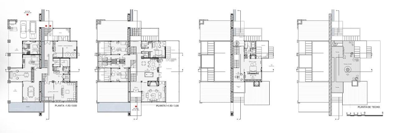
Las premisas de diseño surgieron a partir de dos elementos existentes: uno es un gran terraplén producto de la excavación de la represa, donde se implanta y articula la casa aprovechando las mejores vistas; y otro, la acequia que alimenta la misma.

El agua proveniente de un canal de riego fluye a través de la acequia e ingresa al proyecto en toda su longitud para formar parte del espacio y desborda, finalmente, en la represa por medio de una fuente que deja verse desde el ingreso principal/ comedor/ y galería.


Este marcado eje, con impronta de acueducto romano, es reforzado por una importante muralla de piedra que divide los medios niveles internos distribuyendo para ambos lados los diversos ambientes. Sobre ella escurre agua en forma de cascada, incluyendo vanos protegidos con vidrio para tal fin, y atraviesa los tres pisos de altura hasta perderse en el nivel inferior.


Exteriormente el gran muro cobra protagonismo en cada una de las fachadas, produce un efecto ¨sorpresa¨ al ocultar un costado de la casa según se observe, generando una composición entre sí y con el todo.
El programa cuenta con un gran estar, sala de juegos, comedor formal, estar comedor informal, cocina, 4 dormitorios en suite, balcones, galerías, cocheras y áreas de servicio, spa, sala de micro cine y una importante cava donde se añejan los vinos elaborados de las plantaciones propias de diversas cepas circundantes.


Como remate vertical o quinta fachada, se encuentra una cálida terraza mirador con un deck, gradas de madera y un fogón central en piedra para deleitar las diversas perspectivas en toda su amplitud, sobre todo por las noches.

Una pileta de natación con bordes infinitos, dos de estos dan hacia el viñedo (con el Valle de Uco de fondo) y el tercero ¨desborda¨ hacia el espejo de agua que genera la represa; su respectiva expansión recubierta por un deck de madera que contiene el jacuzzi. Esta expansión se ubica sobre baños, vestuarios y sala de máquinas. Tanto la pileta como jacuzzi están climatizados.


Cabe destacar que la casa se pensó y concretó para ser absolutamente domotizada, pudiéndose controlar riego, climatización, iluminación, alarma, cortinas, pantallas, cascada, pileta de natación y jacuzzi, etc. Posibilita además, el hecho de crear diferentes escenas según la necesidad y gusto.



La materialidad y tonalidades fueron consecuencia de una seria reflexión y respeto por el paisaje. La construcción puede divisarse desde el interior hacia el exterior con ejemplar armonía y viceversa.

Maderas, barandas diseñadas cual espalderos, tonalidades de tierra, hierro y óxido, revestimientos de piedra natural molida, hormigón estampado simulando maderas o piedra en pisos exteriores, porcelanato símil óxido, madera y hormigón mecanizado en pisos interiores. Los vidrios espejados en los accesos reflejan el entorno y se unen a él.

Cada ambiente fue exclusivamente diseñado. Alfombras, cueros, pieles, tejidos, elementos reciclados, microcemento de colores y demás detalles influyen en el sentir campestre, un estilo moderno con historia impresa y un toque especial… que siempre buscó la autenticidad.

Tamaño: 717.57m2
Superficie Terreno: 20 Hás.
Ubicación: Tupungato, Mendoza
Arquitectos
Arq. Enrique Manescau
Arq. Karen Noval
Colaboradores
Arq. Celina Sendra
Ing. Eduardo Cosimano
Ing. Damián Ten
Estado de obra: finalizado, 2012
¿Querés leer la edición interactiva digital de la Revista ClubHouse? Hacé clic aquí.